Дом в Митино
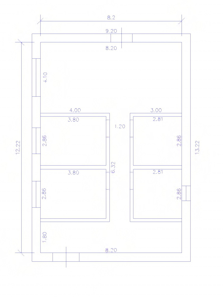
продается отличный дом 2019 года постройки в коттеджном поселке «Имение Митино», удобная эргономичная планировка, все продумано до мелочей, на 1 этаже 108.2 кв.м. полезной отапливаемой площади, это-просторная кухня-гостиная 33.6 кв.м с панорамным остеклением и выходом на участок, 3 комнаты 10.8, 10.8 и 8 кв.м., с/у 8 кв.м., котельная, коридор, тамбур, мансардный этаж в свободной планировке и никак не используется, но там также можно организовать не менее 95 кв.м. полезной отапливаемой жилой площади, часть подготовительных работ для этого уже проведена, по конструктиву: фундамент - монолитная ж/б плита 30 см. с утеплением, стены из керамзитобетона толщиной 40 см. + фасадный пенопласт Ф-25 10 см. под штукатурку, утепление перекрытия 200 мм., кровля - профнастил, окна ПВХ 70 профиль с энергосбережением, электричество 15 кВт, водоснабжение из собственной скважины 27м., канализация – септик, отопление от газового и резервного электрического котлов, стабильный быстрый проводной Интернет от Ростелеком, система видео наблюдения, все системы жизнеобеспечения работают автономно, есть небольшие недоделки по ремонту, они все видны на фото, теперь по земле: земельный участок 1911 кв.м. в собственности, разрешенное использование ИЖС, сухое высокое место, грунт – боровой песок, прекраснейшее расположение - участок крайний, рядом только вековой лес, соседи с одной стороны, дальше проезда нет, всегда тихо, уютно и комфортно, на участке дополнительно залита монолитная ж/б плита 9х7 м. толщиной 20 с.м. под предполагаемую баню и зону отдыха, коттеджный поселок находится на опушке векового хвойного леса, рядом с рекреационной зоной санатория «Митино», полностью освещается, дороги с твердым покрытием, прекрасная локация в минимальной транспортной и пешей удаленности от благ цивилизации, тихое, живописное и экологически чистое место, от дома не избавляемся, продаем по обстоятельствам, делали Все с душой, качественно и исключительно для себя, от выбора самого расположения участка до текущего состояния, все строительные процессы имеются на фото, полная юридическая чистота!, рассмотрим любые формы расчетов!, реальному покупателю аргументированный торг!
Ваш персональный менеджер
Похожие предложения
